Pukari
Rauhallinen pakopaikka
Pukari – entinen rajavartioasema Kuusamossa
Pukarin päärakennus soveltuu urheiluryhmille, leiri- ja rippikouluille, kaveriporukoille, työporukoille ja esim. useammalle perheelle lomanviettopaikaksi, tiimityöskentelyyn ja erämaasta nauttiville.
Päärakennus majoittaa 20-25 henkilöä, lisää majoitustilaa löytyy pihapiirin rivitalosta. Pihapiirissä on myös rantasauna, palju (lisämaksusta) sekä tilava kota, joka on asukkaiden käytössä.
Ympäristö tarjoaa paljon harrastusmahdollisuuksia ympäri vuoden. Talvella on mahdollista osallistua kelkkasafarille oppaamme kanssa, joka vie seurueenne lähes koskemattomille reiteille turvallisesti. Lumikengillä ja metsäsuksilla pääsee ihailemaan luontoa heti portailta astuttaessa. Puhumattakaan revontulien ihailusta ilman valosaastetta, maagisen luonnon keskellä.
Kesällä voit käyttää kajakkejamme sekä soutuvenettä kalaisalla Likolampi -järvellä.
Päärakennusta on mahdollisuus vuokrata pidemmäksi ajaksi, jolloin voimme sopia vuokrasta.
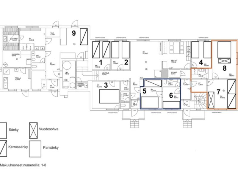
- Vuoteet 20-25 hengelle
- Ryhmät, perheet
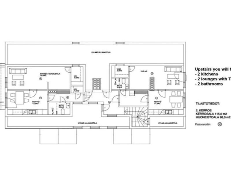
- Alakerta: makuuhuoneet, iso tupakeittiö, oleskelutilat sekä sauna
- Yläkerrassa ryhmätyöskentelytila
Rantasauna, palju (lisämaksusta) ja grillikota (yhteiskäytössä)
- Rannassa kajakkeja sekä soutuvene. Hyvät kalavedet.
Safarit tilauksesta tai yhteistyökumppaneiltamme
Hinnat alkaen
- 210 € /yö, (minimi 2 yötä)
- 430 € /viikonloppu
- 1100 € /viikko
Joulu- ja hiihtolomahinnat alkaen
- 260 € /yö, (minimi 2 yötä)
- 520 € /viikonloppu
- 1400 € /viikko
Lisäpalvelut
- Loppusiivous aina 200€
- Liinavaatteiden vuokraus mahdollista 14€ /henkilö
Lisätietoa
- Vuoteet 20-25 henkilölle
- Alakerrassa makuuhuoneet, iso tupakeittiö, oleskelutilat, sisäsauna sekä suihkut
- Päärakennuksen yläkerrassa on lisäksi oleskelutila
- Sisätiloissa tupakointi kielletty
- Lemmikit sallittuja
- Päärakennuksessa pyykkihuone sekä pyykkien kuivaushuone
- Catering min. 10 hengen ryhmille
- Lämmitysmuoto maalämpö
- Useita huonekaluja on myös kierrätetty, luontoa huomioon ottaen
Piha-alue
- Matkailuautopaikkoja sähköpistokkeella
- Ei WCn tyhjennystä
- Autokatokset neljälle autolle
- Lämmityspitokkeellisia autopaikkoja
- Rannassa on kajakkeja ja soutuvene
- Rantasauna ja palju vuokrattavissa
- Grillikota (50 henkilöä) yhteiskäytössä
- Pihalle valmistuu koirahäkit keväällä 2023, osassa koirankoppi
Lähialue
- Pukarin lähistöllä sodanaikaisia kaivantoja ja rajavyöhykkeelle on noin 400 metrin kävelymatka.
- Omalla polkupyörällä pääsee pihapiiristä Kuusamon lukemattomille eripituisille hiekkatiereiteille, joiden varrella voi nähdä Kuusamolaista täysin koskematonta luontoa.
Varustus
- WiFi
- Televisio
- Avotakka
- Hyvin varustettu keittiö
- Wc 5 kpl
- Sis. peitot ja tyynyt, vuodevaatteet vuokrattavissa
- Suksia ja lumikenkiä lainattavissa
- Pulkkia
- Potkukelkkoja
- Soutuvene ja kajakkeja
- Moottorikelkkasafarit tilauksesta
- Mahdollisuus pilkkimiseen sekä avantouintiin
Etäisyydet
- Rukan hiihtokeskukseen 64km
- Hiihtoladulle 100m
- Ravintolaan 40km
- Kauppaan 44km
- Metsään 100m
- Venäjän rajavyöhykkeelle 400m
- Lentokentälle 45km
- Kuusamon keskustaan 44km
- Uimahalliin 43km
- Hiekkatieverkosto maastopyöräilyyn 0m
Kysy lisää tai tee varaus
Yhteistyökumppaneittemme palvelut

Moottorikelkalla erämaahan
































